Sanierung Schulhaus Wengi, Kernstrasse, Zürich 2010, Planerwahlverfahren 1. Preis
- Planerwahlverfahren 1. Preis
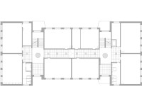
- Gebäude: Schulhaus Wengi
- Baujahr: 1906
- Auftraggeber: Amt für Hochbauten, AHB
- Aufgabe: Instandsetzung und Auffrischung
- Projektbearbeitung: Christine Hotz Steinemann, Luz Rigendinger
- Leistungen: Planung und Ausführung
Das Schulhaus Wengi liegt im dicht bewohnten Zürcher Quartier Aussersihl. Nach einer Aufstockung mit Turnhalle in der 1950er Jahren und einem Umbau in den 1970er Jahren erscheint das Haus sehr heterogen. Die abgehängte Decke und die postautogelben Bauteile erinnern eher an ein anonymes Verwaltungsbaugebäude als an ein Schulhaus der Jahrhundertwende.
Innerhalb einer 9-monatigen Planungs- und Ausführungsphase werden die nötigen Massnahmen für die Anforderungen der Fachschule Viventa festgelegt und das Haus auf Schulstart übergeben. Das Bauvorhaben wurde zum Anlass genommen ein integratives Sanierungskonzept zu entwickeln, welches den Räumen einen neuen Ausdruck verleiht, ohne aber die Bruchstellen der vorhergehenden Epochen komplett zu verwischen. So kann das Haus mit dem Einsatz von bescheidenen Mitteln als zeitgemässes Schulhaus weiterbestehen.
Fotografie: Stefan Jäggi







































































